Ivy Estate – Cranbourne East

  • $1,000,000
Cranbourne East, Melbourne, VIC, 3977, Australia
For Sale

Ivy Estate – Cranbourne East

Cranbourne East, Melbourne, VIC, 3977, Australia
  • $1,000,000

Overview

Property ID: DH-8522
  • House and Land
  • Property Type
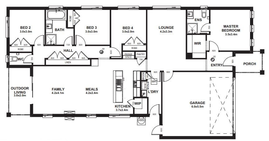
  • 4-4
  • Bedrooms
  • 2-2
  • Bathrooms
  • 1
  • Garage
  • DH-8522
  • Property ID

Description

*Please be advised that some lots/units may need confirmation of availability. Kindly ensure to check availability first by emailing or phoning us.*

Ivy Estate is a botique estate is located in Cranbourne East, it is positioned perfectly alongside parks and adjacent to the renowned Casey fields Sports Precinct. This exclusive Estate is designed perfectly for family livings, set in a delightfully peaceful pocket of greenery, which comes built in with all the amenities you require and so much more. With athletics facilities, sports ovals, tennis courts, cycling tracks, and netball courts, all at a stones throw away. These lots make for a perfect investment or alternatively to build your dream home on.

Sub listings

Title Property Type Price Beds Baths Property Size Availability Date
38 House and Land $646,000 4 2 385 m2

Details

  • Property ID: DH-8522
  • Price: $1,000,000
  • Bedrooms: 4-4
  • Bathrooms: 2-2
  • Garage: 1
  • Property Type: House and Land
  • Property Status: For Sale
  • City Melbourne
  • State/county Victoria
  • Zip/Postal Code 3977
  • Area Cranbourne East

Similar Listings

Compare listings

Compare
Dream Home Property Investments
  • Dream Home Property Investments